StoreFront Studio
December 6, 2009
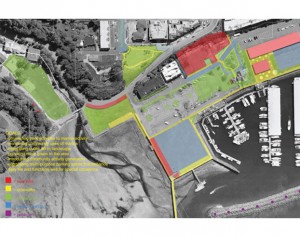
Des Moines – Marina Plan
SPRING 2008
Marina
The marina is one of Des Moines greatest assets. Goals include: connecting park activities to marina activity, increasing community use of marina, integrating public art to landscape, providing more green to the area, introducing community activity generators and suggesting multi-purpose parking spaces that enhance daily life and functions well for special occasions.
